18 York Road , Brantford
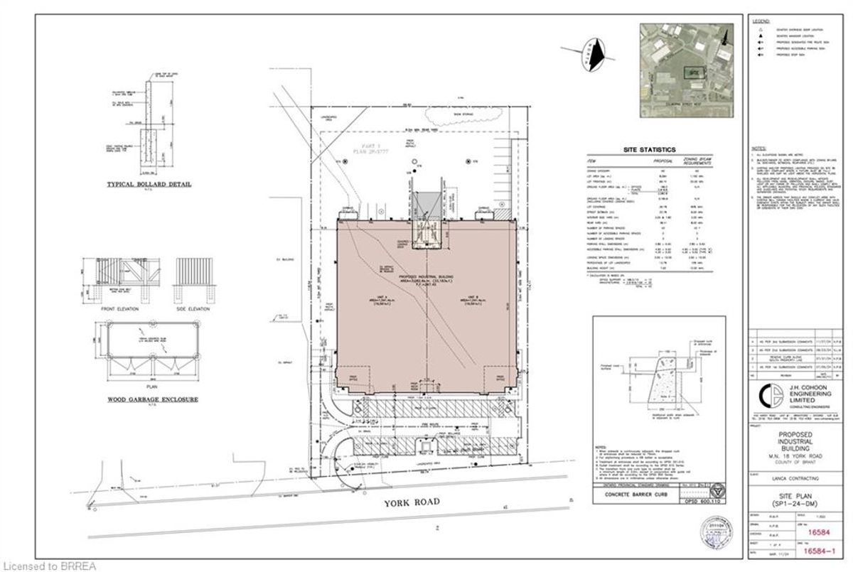
33,183 ft.² under construction standalone industrial building. Building sits on a 2 acre site with M2 Industrial Zoning. 1600 ft.² of professionally finished office space included in lease rate. Warehouse has two dock doors and two drive-in doors. High bay LED lighting and 400 amp 600 V Hydro service. Steel set to be delivered third week in April with Occupancy December 2025.Landlord will consider demising to 16,591 ft.²
...
18 York Road , Brantford, ON N3T 5L7
We will also update you on other related information such as similar sold properties and market reports
Subscribe Now18 York Road is a Commercial Lease Property located in the city of Brantford. 18 York Road has been listed For Lease at $12 since Mar 12 2025. This Industrial,Building Only . Situated in 2060 - Oakhill Dr neighbourhood , with the nearest intersection being Colborne Street West to York Road.
Listing Brokerage: Re/Max Twin City Realty Inc